MBB
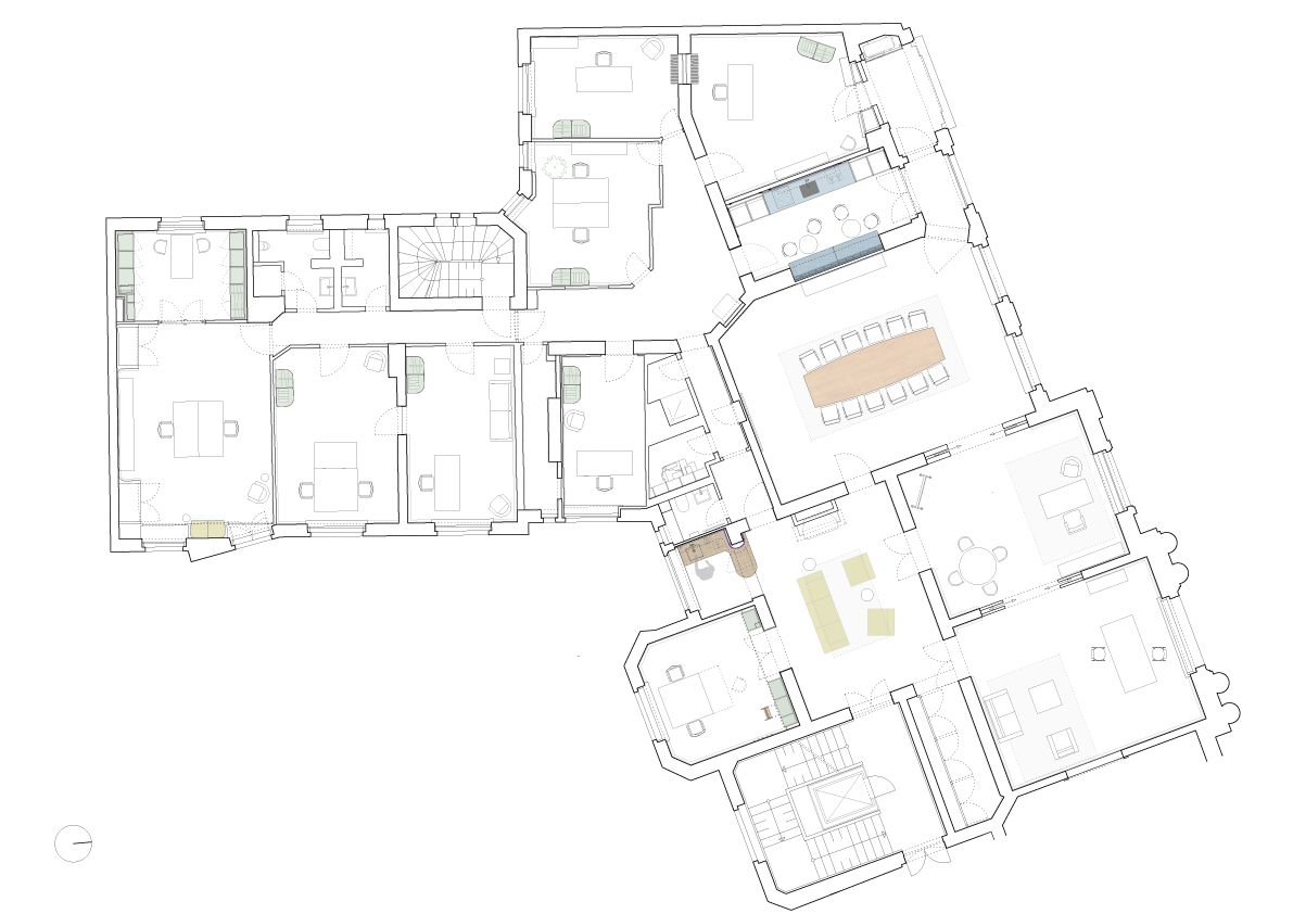
The commercial space at Kurfürstendamm is being carefully renovated and redesigned for the new headquarters of the company MBB SE. The aim is to preserve the character of the listed building and harmonize it with the company’s contemporary identity.
Art Nouveau elements are complemented by custom-made fixtures that reflect the existing materials and proportions while simultaneously adding clear, modern accents.
New and existing furnishings, lighting, curtains, handwoven carpets, and carefully selected artworks create a balanced atmosphere between historical context and modern use, completing the overall picture of a functional and prestigious work environment.
construction: KWW
built-in furniture and conference table: Zweibaum Holzwerkstatt GmbH
rugs: Reuber Henning
photos: Jan Bitter
2025
















